Use our solar water heater calculator to calculate tank size and system capacity. Download free Excel sheet and CAD drawings for solar water heater design.
Solar Water Heater Calculator
🔥 Solar Water Heater Calculator (India – NBC)
Designing a solar hot water system requires accurate calculations of tank size, collector area, and daily hot water demand. Our Solar Water Heater Calculator helps engineers, consultants, and homeowners quickly determine system capacity.
With this tool, you can calculate:
✔ Solar water heater capacity
✔ Daily hot water requirement
✔ Tank size (liters)
✔ Collector area
✔ System efficiency
In addition, you can download:
📥 Solar water heater calculation Excel sheet
📥 Solar water heater CAD drawings
What is a Solar Water Heater?
A solar water heater is a system that uses solar energy to heat water for residential and commercial use.
The system consists of:
- Solar collectors
- Storage tank
- Piping system
These systems are widely used in homes, hotels, and industries.
Solar Water Heater Working Principle
The solar heater works on a simple principle:
1️⃣ Sunlight heats the collector
2️⃣ Heat is transferred to water
3️⃣ Hot water is stored in a tank
4️⃣ Cold water replaces heated water
This process continues throughout the day.
Solar Water Heater Capacity Calculation
Accurate sizing is essential for proper system performance.
Basic Formula
Hot Water Demand = Number of Persons × Liters per Person
Typical values:
- Residential: 40–60 liters per person
- Hotels: 80–120 liters per person
Example Calculation
4 persons × 50 liters = 200 liters tank required
So, a 200 LPD (Liters Per Day) solar water heater is required.
Solar Water Heater Design Calculations
A complete solar water heater design calculation includes:
✔ Tank capacity
✔ Collector area
✔ Heat gain
✔ Losses
Collector Area Formula
Collector Area = Hot Water Demand / Solar Radiation Factor
Efficiency Calculation
Efficiency = Useful Heat Output / Solar Energy Input
This is used in solar water heater efficiency calculation.
Solar Water Heater Calculator Tool (Use Now)
👉 Use your calculator here:
This tool simplifies complex calculations into seconds.
Free Download: Solar Water Heater Excel Sheet
You can download a ready-to-use Excel file for calculations.
Features:
✔ Automatic calculations
✔ Tank size selection
✔ Collector sizing
✔ Easy input
📥 Download here:
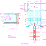
Free Download: Solar Water Heater CAD Drawings
We also provide CAD drawings for engineers.
Includes:
✔ Solar panel layout
✔ Tank connection details
✔ Piping layout
✔ Installation drawings
📥 Download DWG file:
Solar Water Heater System Design
A proper solar heater system design includes:
✔ Collector placement (south-facing)
✔ Tilt angle (based on latitude)
✔ Tank insulation
✔ Pipe routing
Solar Water Heater Design Calculations PDF
You can also provide:
📄 solar water heater calculation pdf
📄 solar water heater design calculations pdf
These improve SEO and user engagement.
Benefits of Solar Water Heater
✔ Saves electricity
✔ Eco-friendly
✔ Low maintenance
✔ Long life
Solar systems reduce energy costs significantly.
Solar Water Heater Efficiency Calculation
Efficiency depends on:
- Solar radiation
- Collector quality
- Heat losses
Improving insulation increases system efficiency.
Applications of Solar Water Heater
✔ Residential buildings
✔ Hotels
✔ Hospitals
✔ Industrial use
FAQ – Solar Water Heater Calculator
What is a solar water heater calculator?
It is a tool used to calculate tank capacity and system size based on water demand.
How do you calculate solar water heater capacity?
Multiply number of users by daily water requirement.
What is the ideal tank size for a home?
Typically 100–300 liters depending on family size.
Can I download solar water heater calculation Excel?
Yes, you can download a free Excel calculator from this page.
📢 Why Download from MEPWORK?
- Free DWG files
- Ready-to-use drawings
- Designed for engineers
- Updated as per industry standards
MEPWORK.IN is developed by an MEP engineering professional with hands-on experience in building services design and execution.
The platform is created to solve real-world engineering problems and provide practical tools for faster and more accurate project work.
Download free AutoCAD DWG files for MEP engineers including plumbing, HVAC, fire alarm, and electrical systems.
All drawings are ready to use and based on industry standards.
All resources are regularly updated as per latest standards (NBC 2016, IS Codes, NFPA, and 2026 industry practices).





















