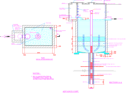
Rain Water Harvesting Drawing DWG Free Download (System Layout Plan)
Introduction Rain water harvesting is one of the most effective and sustainable methods to conserve water in residential, commercial, and industrial projects. With increasing water scarcity and mandatory environmental regulations in many Indian states,…